Ref: 3575-V   

Casa en venta en Alhaurín de la Torre, 625.000 €


Descripción



3575-V Se vende amplia casa adosada con local comercial en el centro de Alhaurín de la Torre.
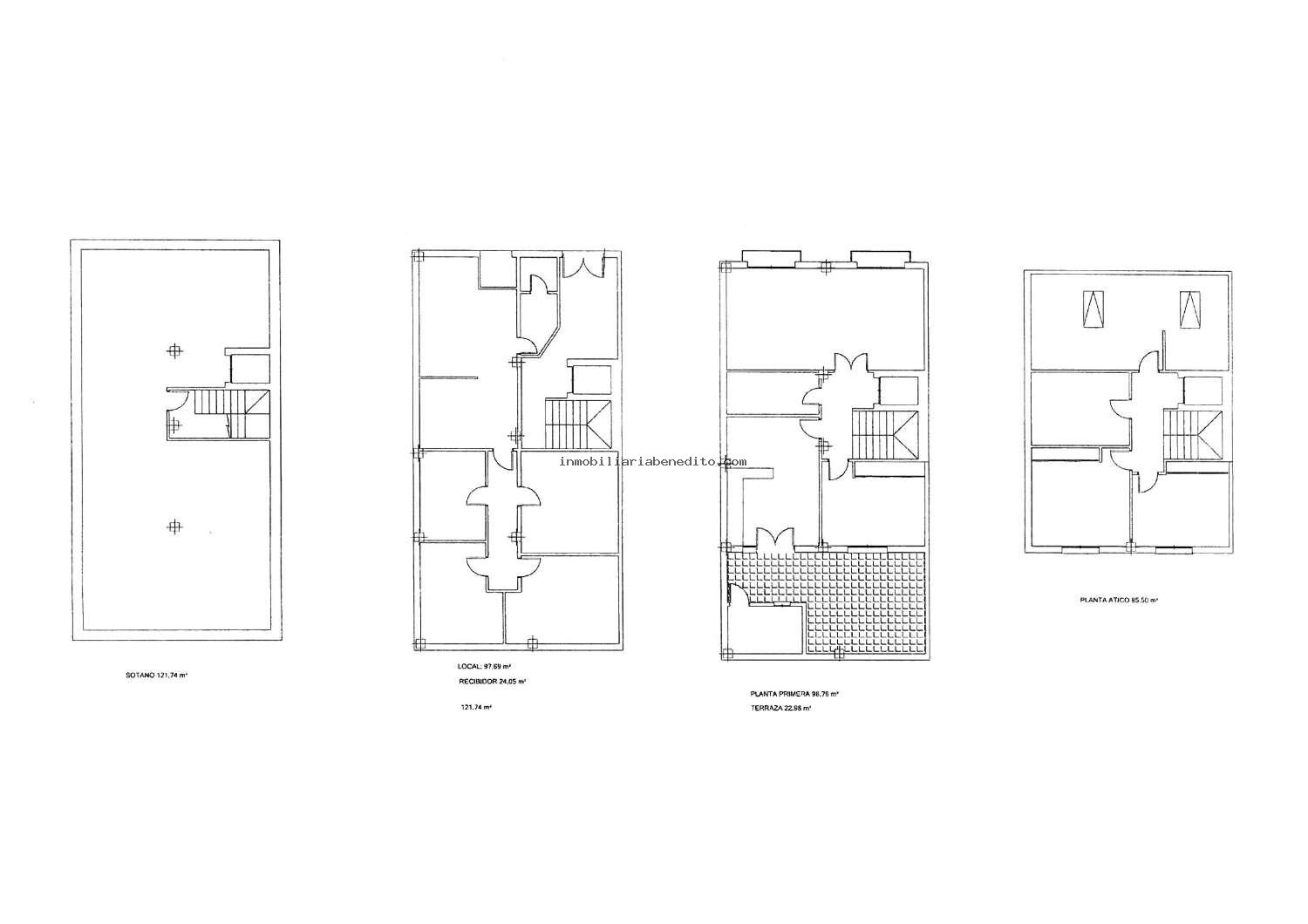
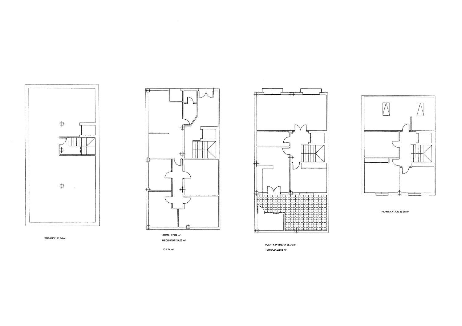
La vivienda destaca por sus 353m2 construidos en 3 plantas con su sótano y construida con materiales de alta calidad y los 97m2 del local comercial que tiene habilitado como oficina en su parte baja con acceso directo a pie de calle e independiente de la vivienda.
La casa se distribuye en: amplio vestíbulo de entrada de 24m2 con acceso a la planta primera por ascensor o por las escaleras.
PLANTA PRIMERA: amplio salón comedor con 2 balcones a la calle principal, 1 dormitorio con ventana al patio lo que le da mucha luminosidad, 1 baño con plato de ducha y amplia cocina con office con salida al patio de 31m2 con toldo y cuarto lavadero.
PLANTA SEGUNDA: Donde encontramos el amplio dormitorio principal con techo abuhardillado y con amplias ventanas que nos ofrecen una gran luminosidad además de la zona de vestidor con sus armarios de alta calidad en madera. El baño de esta planta es muy amplio ya que anteriormente eran dos baños sobre planos.
Los siguientes dos dormitorios con ventanas al exterior lo que nos da mucha luminosidad y reafirma la amplitud de ellos, con sus armarios empotrados de alta calidad y vestidos en su interior.
La casa dispone de aire acondicionado, agua caliente por circuito solar, ascensor con parada en todas las plantas incluido el sótano.
PLANTA SÓTANO: Con 121m2 diáfano y con acceso por ascensor y escalera, tiene el suelo con solería y las paredes terminadas en pintura blanca. Se tiene usando como almacén.
LOCAL COMERCIAL (OFICINA): Con 97m2 a pie de calle y distribuido en recepción con zona de espera, 3 despachos, sala de reuniones, 1 aseo y cuarto de almacén. Dispone de aire acondicionado y cierre motorizado en la puerta principal.

Se encuentra a tan sólo 10 minutos del Aeropuerto Internacional de Málaga, a 10 minutos de playas, a 20 minutos de la capital (Málaga), a 10 minutos de los campos de golf y a tan solo unos minutos de todas las comodidades: supermercados, restaurantes, centros deportivos, colegios y excelentes combinaciones de transporte público.

Se ha omitido la dirección exacta por motivos de seguridad y protección de datos. En cumplimiento del decreto de la junta de Andalucía 208/2005 del 11 de octubre, se informa a los clientes, que los gastos notariales, registrales, i. t. p, y otros gastos inherentes a la compraventa, no están incluidos en el precio.
Los datos expuestos son meramente informativos y no tienen valor contractual, la oferta queda sujeta a errores, cambios de precio, disponibilidad y/o retirada del mercado sin aviso previo.


Características

Generales
  • Adosado
  • 3 Plantas
  • Ascensor
  • 1 Salón
  • 4 Dormitorios
  • 2 Baños
  • 1 Aseo
  • 4 Armarios empotrados
  • Patio
  • Trastero
  • Lavadero
  • Despensa

Superficies
  • Parcela: 116 m2
  • Constr.: 450 m2

Estado
  • Año de construcción: 2006
  • Buena conservación

Equipamiento
  • Cocina amueblada
  • Electrodomésticos
  • Agua caliente individual
  • A/C Climatizador
  • Antena parabólica
  • Teléfono
  • Wifi
  • Portero automático

Servicios
  • Agua
  • Luz

Calidades
  • Solería de cerámica
  • Acristalamiento climalit
  • Puerta reforzada
  • Cerradura de seguridad


Precio

625.000 €

  • m2 constr.: 1.389 €
  • m2 parcela: 5.388 €

  Hipoteca

Mín: 0 €
Máx: 625.000 €


años
Mín: 5 años
Máx: 30 años


        
 

CUOTA MENSUAL

---

Importe total
Inmueble + gastos - entrada

---


Ver desglose


Los resultados son orientativos y no vinculantes y estan calculados con los datos introducidos.


Certificado energético

CALIFICACIÓN ENERGÉTICA

Consumo energía
kW h / m2 año
Emisiones CO2
kg CO2 / m2 año
A
B
C
D
E
F
G
EN TRÁMITE EN TRÁMITE

Situación y Entorno

Alhaurín de la Torre (Málaga)

Situación
  • Zona urbana
  • Exterior
Cerca de
  • Escuelas
  • Comercios
  • Restaurantes
  • Ocio
  • Zonas deportivas
  • Campos de golf
  • Zonas verdes
Comunicaciones
  • Bus
  • Aeropuerto (10 min.)
   Llamar

Uso de cookies

Utilizamos cookies propias y de terceros para mejorar la experiencia en nuestra web y con fines analíticos. Algunas son necesarias para el correcto funcionamiento de la web, otras podrás configurarlas o rechazarlas. Puedes ver más información en la página de Política de cookies